+31 (0)10-4115959
info@unosite.nl

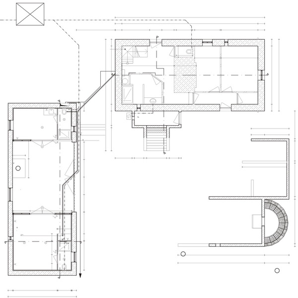
Huis Orliac, Dordogne

Woonhuis Orliac

In het dorp Orliac in de Dordogne hebben we een woonhuis gerestaureerd.

Het huis was reeds jaren onbewoond en deed dienst als opslag. Onderzoek gaf aan dat het reeds honderden jaren oud moet zijn, dit konden we zien aan de oude kapspanten en de evier (gootsteen), maar ook aan het kruisvaarders teken in de dorpel. Kenmerkend is de dubbele openhaard midden in het huis, die de keuken en de woonkamer verwarmen. Wij wilden met het ontwerp het bijzondere karakter van het huis respecteren, daarom zijn veel traditionele bouwmaterialen gezocht. Plavuizen, pleisterwerk en raamkozijnen zijn door plaatselijke ambachtslieden gemaakt en geleverd. Het souterrain is verdiept en geschikt gemaakt voor twee slaapkamers en een badkamer. Boven de woonkeuken is een vide gemaakt naar het dak waardoor de oude spanten zichtbaar zijn,terwijl het tevens veel licht binnenbrengt. De oude broodoven in de schuur is gerestaureerd en tot overdekt terras omgevormd.