+31 (0)10-4115959
info@unosite.nl

Rijswijk gen. Swartlaan, Rijswijk

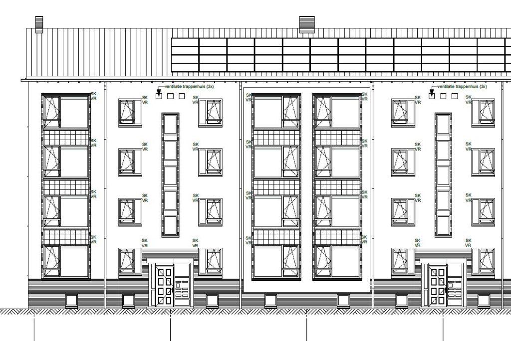
In opdracht van Rijswijk Wonen en in samenwerking met Dura Vermeer Heijma worden 224 appartementen verduurzaamd. De woningen worden van label van G naar A gebracht door middel van buitengevelisolatie, nieuwe kozijnen, installaties en zonnepanelen.

De woningen krijgen nieuwe entrees en grotere balkons.

De binnenterreinen worden opnieuw ontworpen en  toegankelijk gemaakt voor de bewoners.