+31 (0)10-4115959
info@unosite.nl

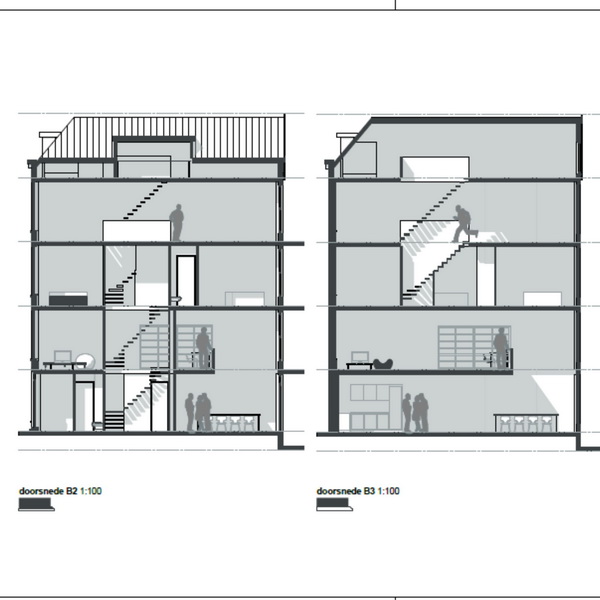
Huis Hoyledestraat, Rotterdam

Het huis maakte deel uit van het project EEN BLOK STAD in Rotterdam.

UNO heeft een ontwerp- en haalbaarheidsstudie gemaakt voor een particuliere opdrachtgever. Na een kennismakingsgesprek en sparren over de woonwensen is in het casco een geheel nieuwe indeling gemaakt. Speciale aandacht ging uit naar de ruimtelijke werking tussen de verdiepingen van dit vroeg 20ste eeuwsepand. De lichtinval was belangrijk omdat het pand smal en diep is. Behalve het ontwerp, hebben we een stichtingskostenberekening gemaakt en een bouwkundige opname verzorgd.

Gebruikmakend van onze 3D computer techniek kon de opdrachtgever snel een idee krijgen van de ruimtelijke werking.